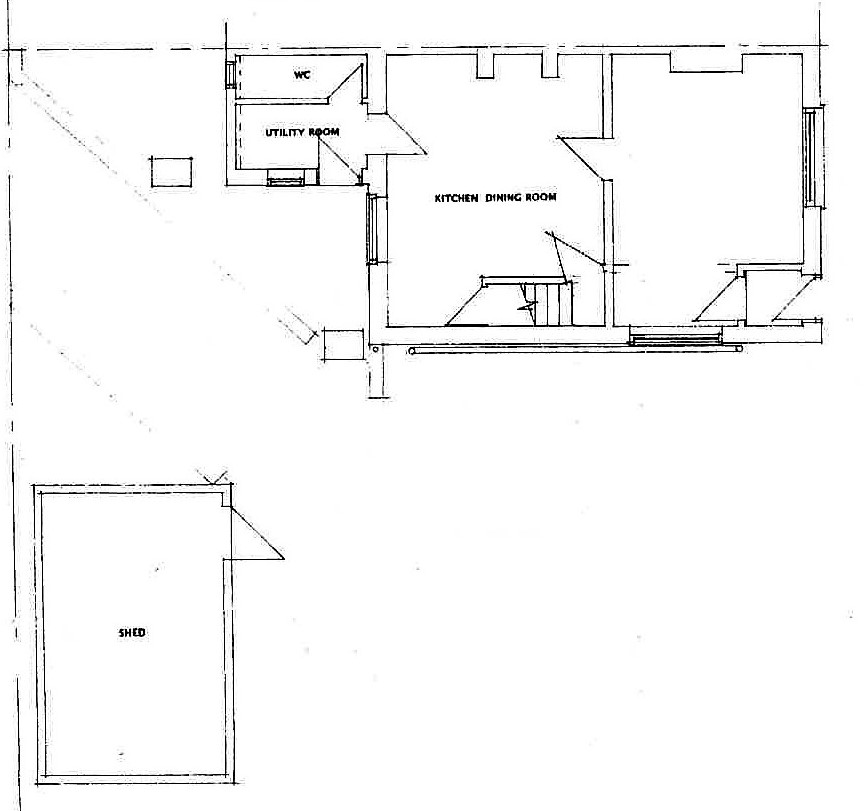
An attractive semi-detached cottage, approx. 100 years old, for modernisation with accommodation comprising small entrance porch, kitchen/breakfast room, utility room, sitting room, cloakroom, 3 double bedrooms, family bathroom, gardens, driveway and off-road parking for 4/5 vehicles.
SERVICES: Mains water, mains drainage, gas central heating.
Council Tax Band C - 2019/2020 £1,766.11
AGENTS' NOTES:
Potential to extend (plans drawn)
Agents' Note: The property has a pedestrian right of way over the neighbouring driveway.
Situated in a quiet semi-rural location on the edge of Heathfield with fabulous un-interrupted views to the South over the Sussex countryside. The property is about a mile from Heathfield town centre with its range of shopping and banking facilities. The area is well served with a range of well regarded primary schools with secondary education being available at the nearby Heathfield Community College.
The are mainline railway stations at both Stonegate and Etchingham (both of which are under a 15 minute drive away) giving services into Charing Cross in just over an hour. With Polegate to Victoria.
The coast at Eastbourne and the spa town of Tunbridge Wells are both about 15 miles away.
16'01'' x 13'0'' Fitted kitchen with ample wall and base units with worksurfaces over, sink and drainer unit, spaces for fridge and freezer, door to utility room, door to stairs rising to the first floor, window to the rear.
14'09'' x 8'06'' Double aspect, feature period fireplace with tiled surround, window to the front garden, door to the front, window south facing.
8'09'' x 4'06'' Space and plumbing for washing machine, storage cupboard, door to the rear garden and driveway.
W.C., and wash handbasin.
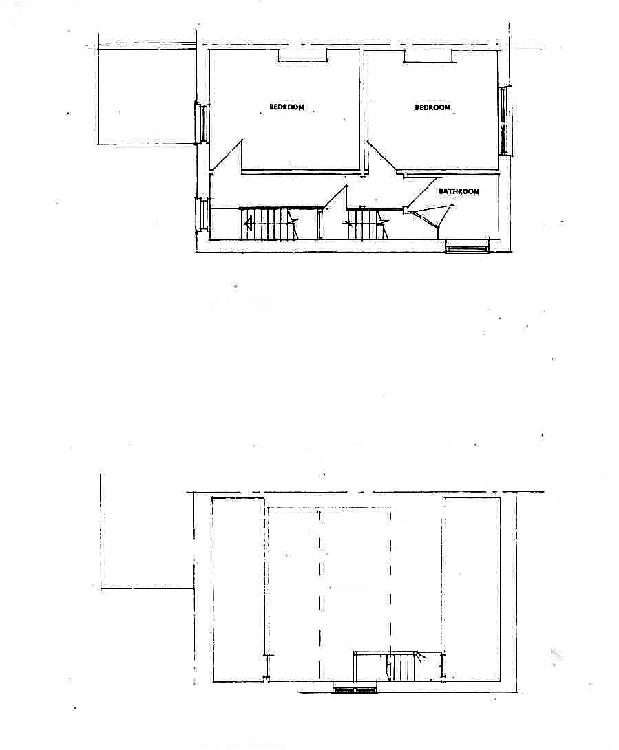
Door to stairs rising to the second floor.
11'11'' x 10'02'' Period fireplace, window to the front with far reaching views across the countryside to the south.
13'0'' x 9'10'' Period feature fireplace, window to the rear.
Bath, W.C. and wash hand basin, window to the side with views.
14'08'' x 12'06'' Large room with extensive eaves storage, window to the south with far-reaching views.
Secluded and peaceful gardens with mature trees and shrubs, attractive brick paved seating area to the front, un-interrupted views to the south over the countryside. There is a pedestrian right of way over the neighbours drive to the lane.
Double gates to the drive leading to a parking area for up to 5 vehicles, large workshop with light and power connected.
For further information on this property please call 01435 865151 or e-mail lettings@westwoods.co.uk

